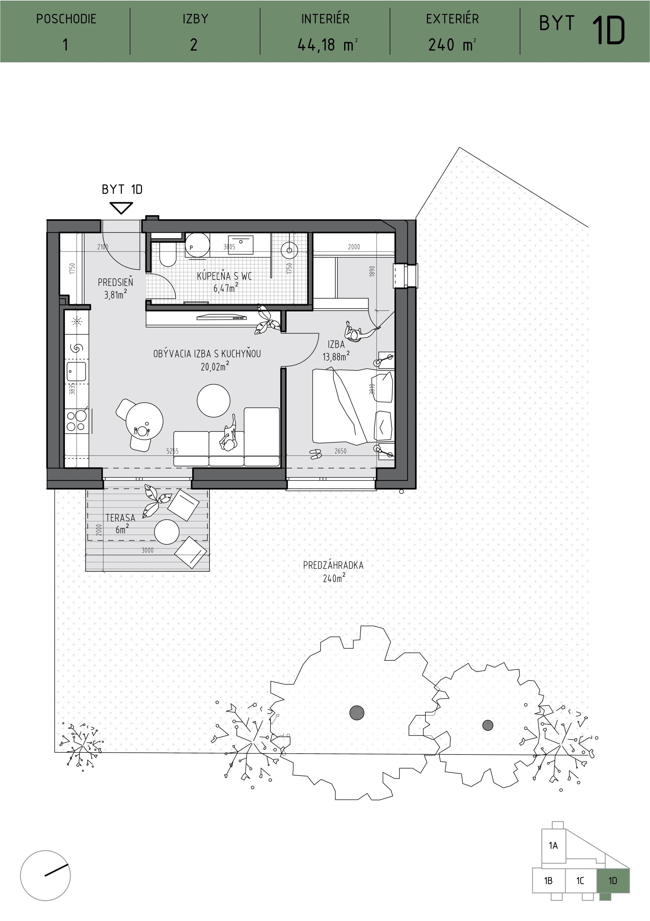
Bytový dom ČastkovceBYT 1D
- Vyberiete si svoju novú nehnuteľnosť a variant financovania.
- Ak sa rozhodnete pre financovanie kúpy prostredníctvom hypotekárnym úverom, náš hypotekárny špecialista s vami vyrieši všetky povinnosti a pripraví vám ponuku na mieru.
- Podpíšeme Zmluvu o budúcej kúpnej zmluve (ZoBZ) a uhradíte rezervčný poplatok vo výške 3.000,- EUR.
- V zmluvne dohodnutej lehote podľa zvoleného variantu financovania uhradíte ďalšiu časť kúpnej ceny.
- Po vydaní právoplatného kolaudačného rozhodnutia v zmluvne dohodnutej lehote podpíšeme Zmluvu o prevode vlastníctva nehnuteľností a uhradíte poslednú časť kúpnej ceny.
- My sa následne postaráme o zápis na katastri a odovzdáme vám vašu novú nehnuteľnosť.
* Postup kúpy a úhrada kúpnej ceny sa môže zmeniť podľa variantu financovania, ktorý si zvolíte.
HYPOTÉKA:
Našim klientom zabezpečujeme celý proces hypotéky priamo u nás, vrátane výberu najnižšej úrokovej sadzby.
Vďaka dlhoročnej praxi a tomu, že máme financovanie pod dohľadom od začiatku až do konca, prebieha všetko hladko, spoľahlivo a bez stresu - o čom sa presvedčilo už množstvo našich klientov.
- Zľava 7 %
Ak chcete získať najvyššiu zľavu 7 %, kúpna cena sa uhradí v plnej výške vopred. Tento variant je ideálny pre klientov, ktorí majú financie pripravené a chcú si zafixovať výhodnejšiu cenu hneď na začiatku. Všetko je jasné, rýchle a bez ďalších platieb počas výstavby. - Zľava 5 %
Získate zľavu 5 % a zároveň si platby rozdelíte na dve časti. Pri rezervácii uhradíte 50 % a druhých 50 % až po realizácii vnútorných omietok. Je to praktický kompromis medzi výhodnou cenou a rozumným rozložením platieb. - Zľava 3 %
Pri tomto variante získate zľavu 3 % a platby sú rozdelené do troch krokov podľa míľnikov výstavby. Pri rezervácii uhradíte 30%, následne 40 % po dokončení hrubej stavby a posledných 30 % po zrealizovaní vnútorných omietok. Je to vhodná voľba, ak chcete mať najviac kontroly nad cash-flow a zároveň využiť zľavu. - Bez zľavy
Ak preferujete platiť väčšiu časť až na konci, tento variant je najpohodlnejší. Pri rezervácii uhradíte 20 % a zvyšných 80 % až po kolaudácii. Zľava sa pri tomto variante neuplatňuje, no získate najväčší odklad hlavnej platby.
Pomôžeme vám aj s ďalšími krokmi
S projektom vášho nového domu vás sprevádzame od položenia základov až po osadenie elektrických vypínačov. Záleží nám na finálnom výsledku.
Interiérový dizajn a výroba nábytku na mieru
Exteriérový dizajn - záhrada
Interiérový dizajn a výroba nábytku na mieru
Exteriérový dizajn - záhrada
Inštalácia kamerového systému
Napojenie domu na pult centrálnej ochrany
Inteligentná domácnosť
Bezpečnostný projekt a zapezpečovací systém
Stretnime sa a povedzme si viac
Potrebujete vyriešiť financovanie kúpy novej nehnuteľnosti? Naším klientom ponúkame kompletné a rýchle vybavenie hypotekárneho úveru, bez poplatkov. Vybavíme a zaplatíme za Vás znalca, kataster a všetky potrebné poplatky.



